Позвонить

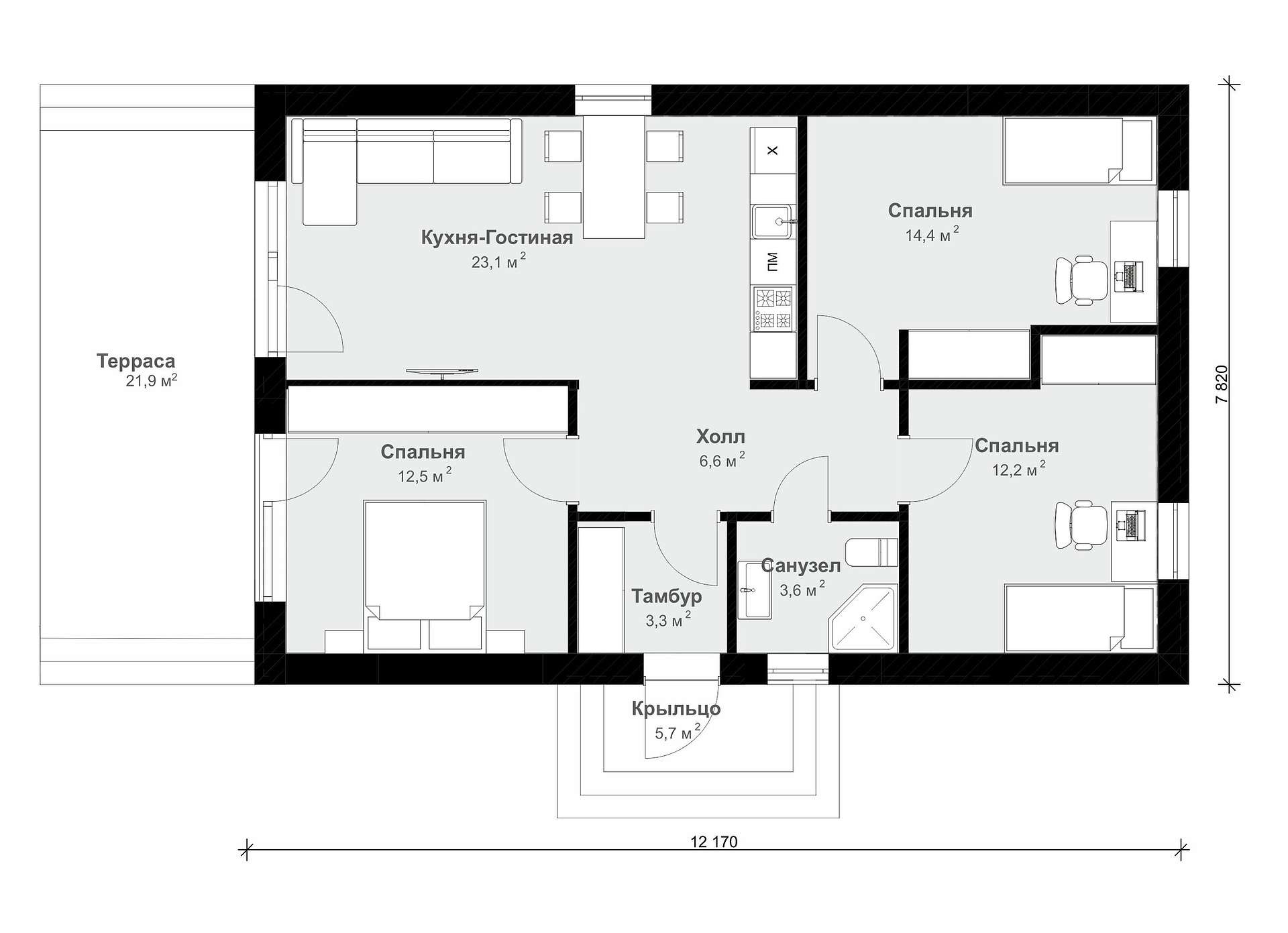
Проект «Финляндия»

Площадь

76 м²

Этажей

1

Спален

3

Санузлов

1

Планировка

Стоимость

Листайте вправо-влево, чтобы
посмотреть все комплектации

Старт

Стандарт

Комфорт

Фундамент

  • Инженерная подготовка участка. Геологические и геодезические исследования.
  • Корректировка проекта и сметы (при необходимости) на основании геодезических и геологических исследований.
  • Привязка и посадка дома на участок заказчика.
  • Фундамент ленточный или ростверковый на буронабивных сваях. Фундамент утеплен экструдированным пенополистиролом 50 мм.

Фундамент

  • Инженерная подготовка участка. Геологические и геодезические исследования.
  • Корректировка проекта и сметы (при необходимости) на основании геодезических и геологических исследований.
  • Привязка и посадка дома на участок заказчика.
  • Фундамент ленточный или ростверковый на буронабивных сваях. Фундамент утеплен экструдированным пенополистиролом 50 мм.

Фундамент

  • Инженерная подготовка участка. Геологические и геодезические исследования.
  • Корректировка проекта и сметы (при необходимости) на основании геодезических и геологических исследований.
  • Привязка и посадка дома на участок заказчика
  • Фундамент ленточный или ростверковый на буронабивных сваях. Фундамент утеплен экструдированным пенополистиролом 50 мм

Стены

  • Стены из автоклавного газобетона толщиной 400 мм.
  • Армопояс.
  • Межкомнатные перегородки из кирпича.

Стены

  • Стены из автоклавного газобетона толщиной 400 мм.
  • Армопояс.
  • Межкомнатные перегородки из кирпича

Стены

  • Стены из автоклавного газобетона толщиной 400 мм.
  • Армопояс.
  • Межкомнатные перегородки из кирпича

Перекрытия

Полы первого этажа.

  • Замещение местного грунта на речной песок H = 300-400 мм с послойным уплотнением.
  • Бетонная армированная плита.

Межэтажные перекрытия.

  • У одноэтажных домов – перекрытие этажа железобетонное, утеплено минеральным утеплителем толщиной 250 мм.
  • У двухэтажных домов – перекрытие первого этажа железобетонное, перекрытие второго этажа – железобетонное, утеплено утеплителем толщиной 250 мм.

Перекрытия

Полы первого этажа.

  • Замещение местного грунта на речной песок H = 300-400 мм с послойным уплотнением.
  • Бетонная армированная плита.

Межэтажные перекрытия.

  • У одноэтажных домов – перекрытие этажа железобетонное, утеплено минеральным утеплителем толщиной 250 мм.
  • У двухэтажных домов – перекрытие первого этажа железобетонное, перекрытие второго этажа – железобетонное, утеплено утеплителем толщиной 250 мм.
  • Утепление бетонной плиты экструдированным пенополистиролом 50 мм.
  • Чистовая полусухая стяжка.

Перекрытия

Полы первого этажа.

  • Замещение местного грунта на речной песок H = 300-400 мм с послойным уплотнением.
  • Бетонная армированная плита.

Межэтажные перекрытия.

  • У одноэтажных домов – перекрытие этажа железобетонное, утеплено минеральным утеплителем толщиной 250 мм.
  • У двухэтажных домов – перекрытие первого этажа железобетонное, перекрытие второго этажа – железобетонное, утеплено утеплителем толщиной 250 мм.
  • Утепление бетонной плиты экструдированным пенополистиролом 50 мм.
  • Чистовая полусухая стяжка.

Кровля

  • Покрытие кровли — металлическая черепица.

Кровля

  • Покрытие кровли — металлическая черепица.
  • Кровельная водосточная система.

Кровля

  • Покрытие кровли — металлическая черепица.
  • Кровельная водосточная система.
  • Кровельная система снегозадержания

Окна и двери

  • Дверь входная металлическая временная.
  • Окна из 5-ти камерного ПВХ профиля и 2-х камерного стеклопакета с энергоэффективным покрытием.
  • Оконный профиль ПВХ окрашен в цвет по RAL.

Окна и двери

  • Дверь входная металлическая утепленная с терморазрывом.
  • Окна из 5-ти камерного ПВХ профиля и 2-х камерного стеклопакета с энергоэффективным покрытием.
  • Оконный профиль ПВХ окрашен в цвет по RAL

Окна и двери

  • Дверь входная металлическая утепленная с терморазрывом.
  • Окна из 5-ти камерного ПВХ профиля и 2-х камерного стеклопакета с энергоэффективным покрытием.
  • Оконный профиль ПВХ окрашен в цвет по RAL

Внутренние инженерные сети

  • Канализация разведена по дому под полом (труба 110 мм).
  • Гильзы для ввода наружных инженерных систем водоснабжения, газоснабжения и электроснабжения.

Внутренние инженерные сети

  • Канализация разведена по дому под полом (труба 110 мм).
  • Водоснабжение разведено по дому.
  • Электроэнергия разведена по дому
  • Смонтировано оборудование газовой котельной
  • Отопление разведено по дому (теплый пол и радиаторы).
  • Естественная вытяжная вентиляция разведена по «мокрым точкам» дома: котельная, санузлы, кухня.

Внутренние инженерные сети

  • Канализация разведена по дому под полом (труба 110 мм).
  • Водоснабжение разведено по дому.
  • Электроэнергия разведена по дому.
  • Смонтировано оборудование газовой котельной.
  • Отопление разведено по дому (теплый пол и радиаторы).
  • Естественная вытяжная вентиляция разведена по «мокрым точкам» дома: котельная, санузлы, кухня.
  • Приточная вентиляция. Приточные клапана устанавливаются в каждой жилой комнате.
  • Внутрипольные конвекторы. Монтируются у панорамных окон-дверей выхода на террасу.

Внутренняя отделка

  • Стены оштукатурены гипсовой штукатуркой механизированным способом.
  • Отделка стен котельной кафелем.

Внутренняя отделка

  • Стены оштукатурены гипсовой штукатуркой механизированным способом.
  • Отделка стен котельной кафелем.
  • Шпатлевка стен.
  • Установка розеток и выключателей.

Фасад

  • декоративная фасадная штукатурка
  • деревянный фасадный декор

Фасад

  • Кирпич.
  • Деревянный фасадный декор.

Крыльцо

  • Бетонное крыльцо.

Крыльцо

  • Бетонное крыльцо.
  • Отделка крыльца бетонной брусчаткой и поребриком.

Утепленная отмостка

Отмостка вокруг дома из бетонной брусчатки.

  • Замещение существующего пучинистого грунта на речной песок H = 400 мм с послойным уплотнением.
  • Укладка экструдированного пенополистерола 50 мм и  гидроизоляционной мембраны Planter.
  • Монтаж поребрика, укладка бетонной брусчатки на слой отсева.

Терраса

  • Терраса на сваях и металлическом каркасе, покрытая деревянной крашеной доской (если предусмотрена проектом)

от 4,76 млн ₽ 

Заполните форму,
чтобы получить полную смету

Нажимая на кнопку, соглашаюсь с Политикой конфиденциальности

Узнай цену ONLINE

Заполните форму,
чтобы получить полную смету

Нажимая на кнопку, соглашаюсь с Политикой конфиденциальности

Узнай цену ONLINE

Заполните форму,
чтобы получить полную смету

Нажимая на кнопку, соглашаюсь с Политикой конфиденциальности

Доступные ипотечные программы

Сельская

Ипотека на участок и любые
постройки

3%

Базовая
на строительство дома

Ипотека на участок и строительство жилого дома

от 20,3%

Семейная

Для семей с детьми

от 6%

Цена дома

400 000 ₽

30 000 000 ₽

Первоначальный взнос

20.1%

400 000 ₽

11 000 000 ₽

Срок кредита

1 год

30 лет

Процентная ставка

%

Сумма кредита

 ₽

Ежемесячный платёж

 ₽

Получить персональные
условия по ипотеке

Программа недоступна.
Превышена максимальная сумма кредита. Уменьшите стоимость недвижимости до  ₽. Вы также можете выбрать другую программу.

Программа недоступна.
Недостаточный первоначальный взнос. Увеличьте первоначальный взнос до  ₽. Вы также можете выбрать другую программу.

Программа недоступна.
Превышена максимальная сумма кредита. Уменьшите стоимость недвижимости до  ₽ или увеличьте первоначальный взнос до  ₽. Вы также можете выбрать другую программу.

Финансовые партнёры для рекламы услуг «ипотека»: банк ВТБ (ПАО), ПАО РОСБАНК,
АО «Россельхозбанк», АО «Альфабанк», АО «Почта банк», банк ГПБ (АО)

Расчёт условий не является публичной офертой. Финальные условия кредитования определяются при заключении договора. Применение субсидирования определяется застройщиком.

Понравился проект или хотите изменить планировку под себя?

Оставьте заявку, мы рассчитаем точную стоимость, пришлём смету и проконсультируем по любым вопросам по строительству

Нажимая на кнопку, соглашаюсь с Политикой конфиденциальности

Звоните по телефону:

+7 929 399-19-29

Или пишите в мессенджеры:

Проект бесплатный

если строите дом с нами

Другие проекты

Проект «Брюгге»
Площадь, м²

71 м²

Этажей

1

Спален

2

Санузлов

2

от 4,41 млн ₽

Подробнее о проекте
Проект «Берген»
Площадь, м²

75 м²

Этажей

1

Спален

2

Санузлов

1

от 4,77 млн ₽

Подробнее о проекте
Проект «Нарвик»
Площадь, м²

79 м²

Этажей

1

Спален

2

Санузлов

2

от 4,97 млн ₽

Подробнее о проекте
Проект «Рейне»
Площадь, м²

64

Этажей

1

Спален

2

Санузлов

1

от 3 960 000 ₽.

Подробнее о проекте
Проект «Рейне»
Площадь, м²

64

Этажей

1

Спален

2

Санузлов

1

от 3 960 000 ₽.

Подробнее о проекте
Проект «Рейне»
Площадь, м²

64

Этажей

1

Спален

2

Санузлов

1

от 3 960 000 ₽.

Подробнее о проекте
Проект «Рейне»
Площадь, м²

64

Этажей

1

Спален

2

Санузлов

1

от 3 960 000 ₽.

Подробнее о проекте
0:00 / 0:00
Написать в WhatsApp